Prodej komerčního domu, Uherské Hradiště - Zelný trh

  • Podlahová plocha: 992m2
  • Parcela: 270m2
  • Koupelna: 1×
  • Sklep: 1×
  • Podlaží: 5 z 6
39 000 000 Kč
za nemovitost
Ondřej Brim
603 390 202
Mám zájem

Detaily nemovitosti

Obec:
Uherské Hradiště
Typ zakazky:
Prodej
Typ nemovitosti:
Komerční
Dispozice:
Obchodní prostory
Výměra:
270m2
Užitná plocha:
992m2
Konstrukce:
Cihlová
PENB:
G2
Podlaží:
5

Popis nemovitosti

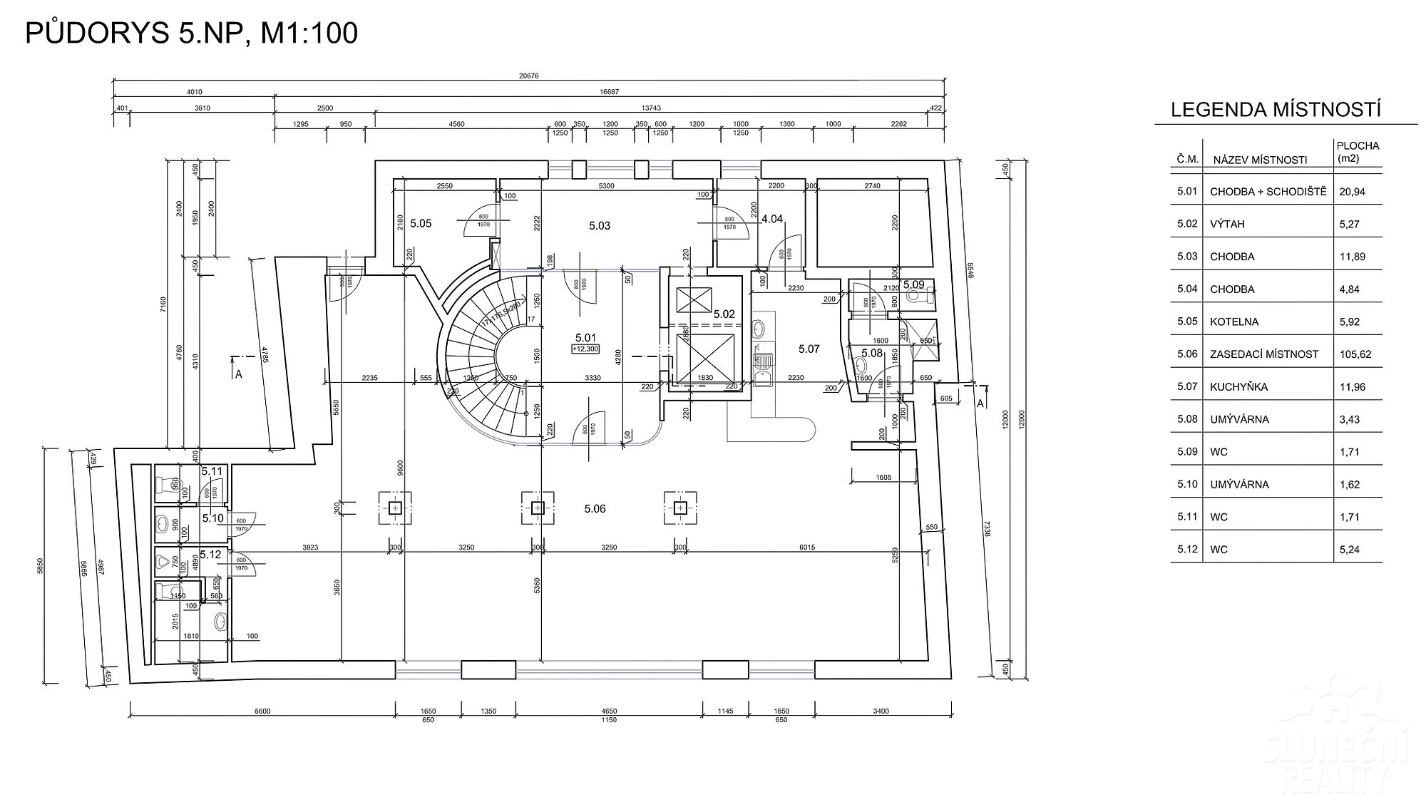
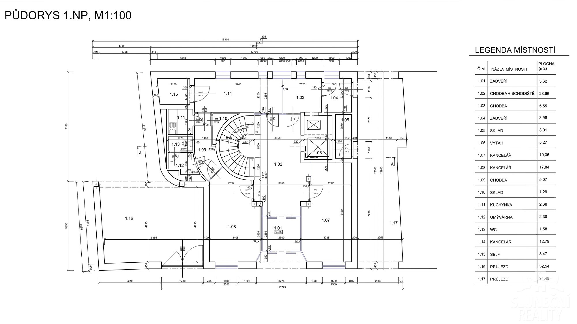
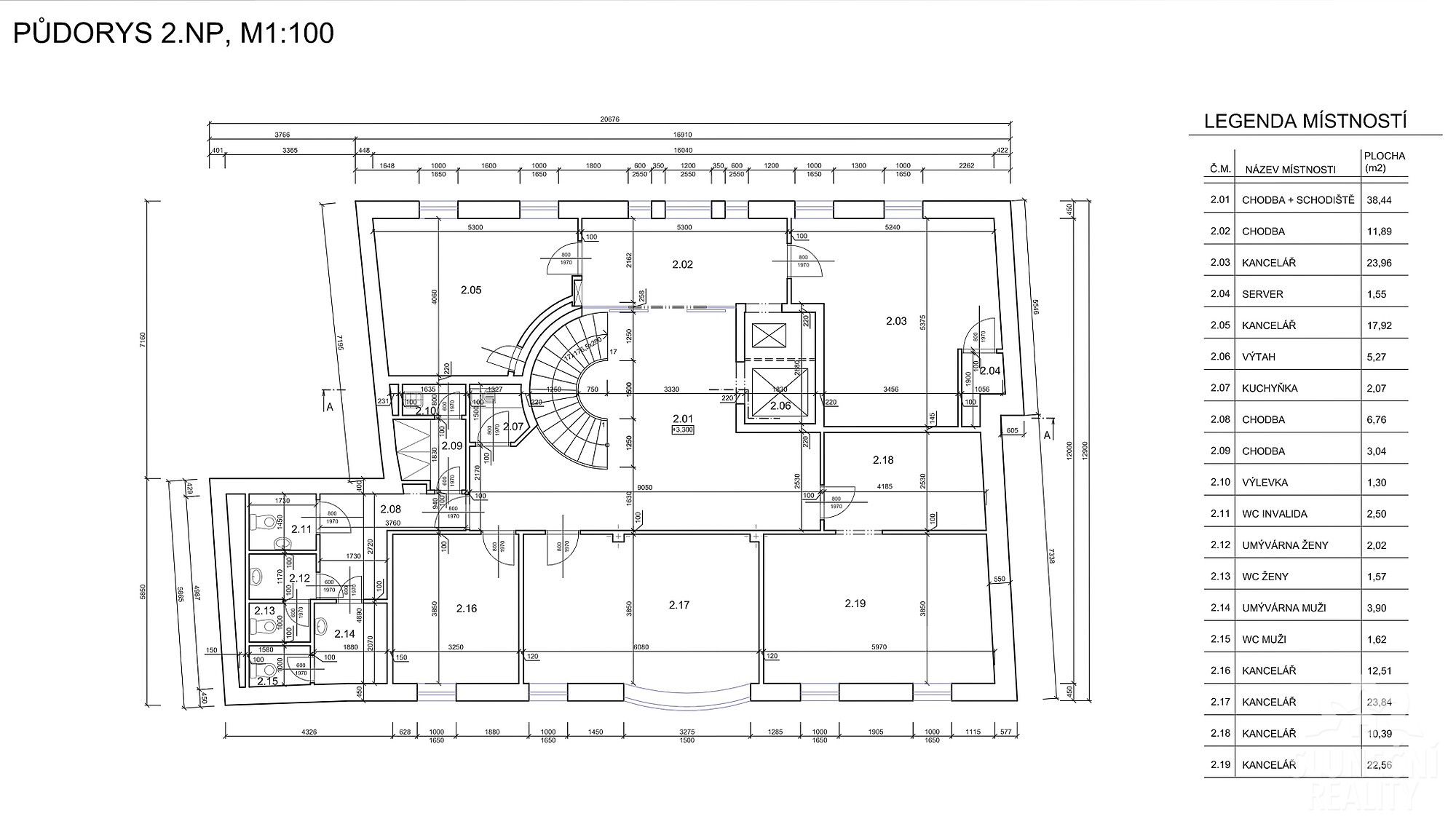
Nabízíme k prodeji pětipodlažní, kompletně podsklepený komerční dům situovaný přímo v historickém centru Uherského Hradiště, v atraktivní lokalitě u Zelného trhu. Objekt slouží jako administrativní dům s kancelářemi a zázemím pro firmy, což z něj činí ideální příležitost pro investory i vlastní užívání. Budova byla postavena v roce 1996 a je řešena jako železobetonový skelet s monolitickými stropy, což zajišťuje velmi dobrou stabilitu a variabilitu vnitřních dispozic. Jednotlivá podlaží jsou pohodlně propojena centrálním schodištěm a výtahem, což výrazně zvyšuje komfort uživatelů i atraktivitu pro nájemce. Dům je plně napojen na veškeré inženýrské sítě – vodu, kanalizaci, plyn i elektřinu. Vytápění objektu je zajištěno vlastní plynovou kotelnou umístěnou v horním podlaží. Okna a výkladce jsou dřevěné, fasáda je omítaná a částečně obložená. Architektonicky objekt zapadá do historického charakteru centra města – sedlová střecha s částečnou valbou, tři vikýře orientované směrem do náměstí a kvalitní střešní krytina z bobrovek doplněná měděným oplechováním půlkruhového vikýře podtrhují reprezentativní vzhled budovy. Přístup do objektu i příjezd jsou zajištěny ze Zelného trhu, kde se nachází také veřejné parkovací plochy. Výborná dostupnost, viditelnost a poloha v centru města dávají této nemovitosti dlouhodobý investiční potenciál. Nemovitost je vhodná jako sídlo firmy, administrativní centrum, kombinace vlastního užívání a pronájmu, případně jako dlouhodobá výnosová investice. Více informací na telefonu nebo emailu. Prohlídky možné po předchozí domluvě.

Lokalita nemovitosti

Fotogalerie

Napište prosím Vaše kontakty, ozveme se obratem
×
© 2004–2026 Sluneční Reality Mapa stránek