Pronájem bytu 2+kk, Staré Město - Brněnská

  • Podlahová plocha: 51m2
  • Parcela: 91m2
  • Počet pokojů: 2
  • Terasa: 40m2
  • Podlaží: 2 z 3
  • Parkovací stání: 1×
13 000 Kč
za měsíc
uvedená cena je bez energií, které činí 3.000 Kč/měs.
Nikola Křapová
603 390 202
Mám zájem

Detaily nemovitosti

Obec:
Staré Město
Typ zakazky:
Pronájem
Typ nemovitosti:
Byt
Dispozice:
2+kk
Výměra:
91m2
Užitná plocha:
51m2
Konstrukce:
Cihlová
PENB:
G2
Podlaží:
2

Popis nemovitosti

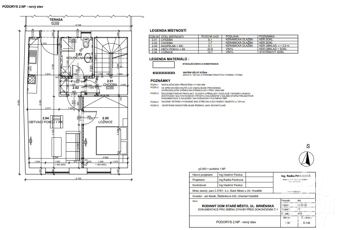
Nabízíme k pronájmu zrekonstruovanou bytovou jednotku 2+kk s podlahovou plochou 51 m2 + terasa o velikosti 40 m2, lokalita Staré Město – Brněnská. Byt se nachází ve 2.NP kompletně zrekonstruovaného rodinného domu, který je rozdělen na 3 bytové jednotky. Byt je vybaven novou kuchyňskou linkou (lednice s mrazničkou, myčka, indukční deska, trouba a digestoř), klimatizací, vestavnou skříní, venkovními elektronicky ovládanými žaluziemi a podlahovým vytápěním. Uvedená cena je bez záloh za energie, které činí 3.000 Kč/měs. Byt bude k nastěhování od 1. 6. 2026. Vratná kauce činí 20.000 Kč a provize RK je ve výši 16.000 Kč. Bytová jednotka je vhodná pro 2 osoby bez domácích mazlíčků. Více informací Vám rádi poskytneme na telefonu nebo emailu. Prohlídky možné po předchozí telefonické domluvě.

Lokalita nemovitosti

Fotogalerie

Napište prosím Vaše kontakty, ozveme se obratem
×
© 2004–2026 Sluneční Reality Mapa stránek